Green Field Villas, the prestigious project from CPK Builders, offers luxurious villas in affordable price range. Being a proud owner of a Green Field Villa means that you the key to a happy family. Ideally located in Kinavakkal, Kuthupraramba, Green Field Villas provide you with perfect living experience with all amenities in close proximity. There are eight villas set up in ambient surroundings and state-of-the-art interiors as part of the Green Field Villa project.

Green Field Villas, the prestigious project from CPK Builders, offers luxurious villas in affordable price range. Being a proud owner of a Green Field Villa means that you the key to a happy family. Ideally located in Kinavakkal, Kuthupraramba, Green Field Villas provide you with perfect living experience with all amenities in close proximity. There are eight villas set up in ambient surroundings and state-of-the-art interiors as part of the Green Field Villa project. Green Field Villas is a unique project, for it comes with exclusive features. Apart from state-of-the-art facilities, the project comes up with amenities like internal roads, CCTV security system, Compound Wall with Automated Main Gate, Rain Water Harvesting facilities, and common Well with Water supply to all villas!
Another advantage of living in the Green Field Villas is that it is ideally situated near Kannur International Airport. It takes approximately 16 kilometers to reach the airport from the Green Field Villas.
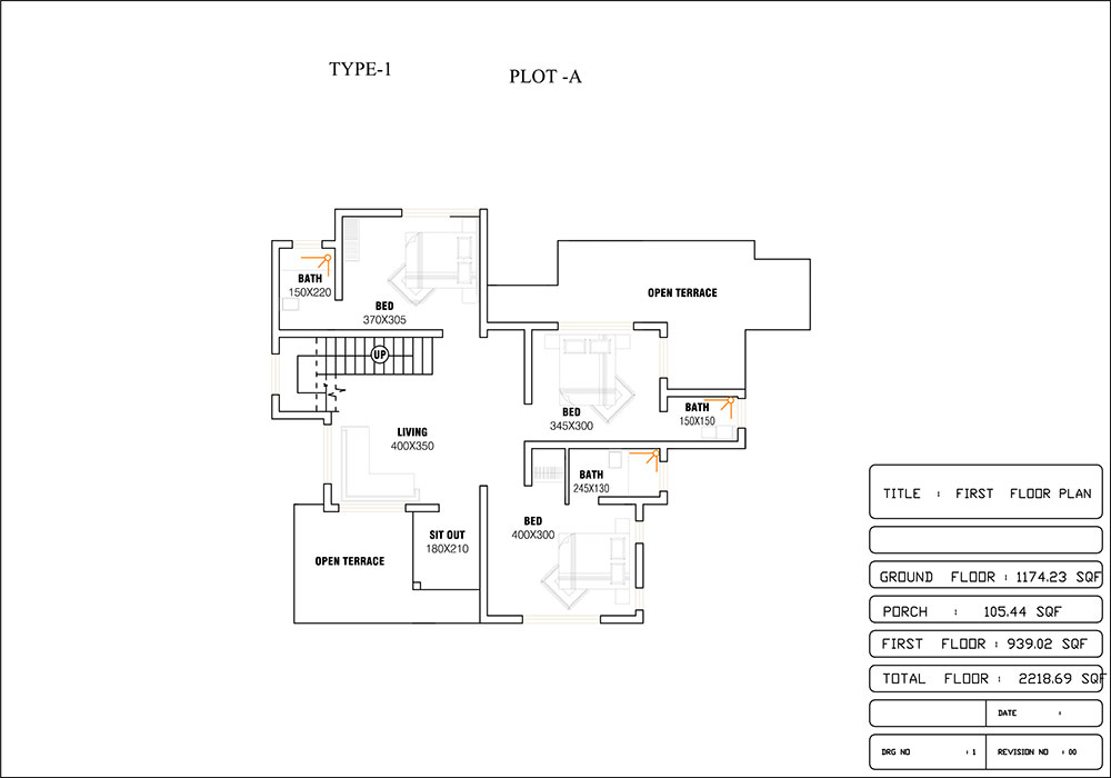
Ground Floor: 1174.23 sqf
Porch:105.44 sqf
First Floor: 939.02 sqf
Total Floor: 2218.69 sqf
Ground Floor: 1171.22 sqf
Porch: 105.44 sqf
First Floor: 943.43 sqf
Total Floor: 2220.09 sqf
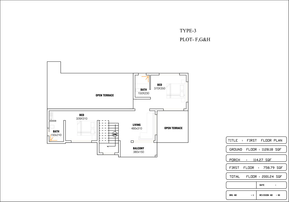
Ground Floor: 1128.18 sqf
Porch: 114.27 sqf
First Floor: 758.79 sqf
Total Floor: 2001.24 sqf
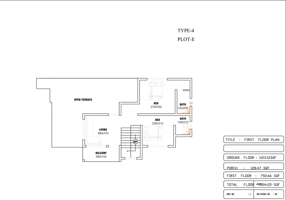
Ground Floor: 1123.12 sqf
Porch: 128.47 sqf
First Floor: 752.66 sqf
Total Floor: 2004.25 sqf
